Construction will soon start on a new facility for the Marble Falls High School baseball program after the Marble Falls Independent School District Board of Trustees approved a guaranteed maximum price during its regular board meeting March 23.
The GMP is $7,152,778 and includes construction costs, bonds and insurance, escalation, a $300,000 contingency, contractor fee and general conditions and reconstruction. It will be funded from the voter approved 2025 bond program allocations for athletic facilities.
Work will begin April 1 and is expected to be completed Dec. 31, though Marble Falls ISD Superintendent Jeff Gasaway, who made the presentation and request to the board, said construction could have started March 24.
According to reports, the subcontractor pricing was updated Feb. 17.
”We are going to come in over budget,” he said. “It’s not what I was hoping for, it’s not what I was excited about. But what I will say is I think what we promised the community, we’re going to talk about delivering.”
As Gasaway stood before the board of trustees March 23, he noted the facts about the new baseball facility.
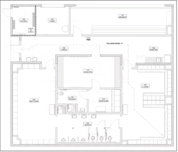
It will include a new stadium, a new playing field with artificial turf, batting cages and press box, seating for 306 fans, public address system, home and visitor dugouts and a home clubhouse complete with junior varsity and varsity locker rooms, and coaches office.
The artificial turf is from Symmetry Sports Construction, whose turf is already at Scearce Softball Field and will include a pitcher’s mound, home plate, base paths, outfield and foul territory, and warning track. The batting cages are on located on the left side or near the third base line and the bullpen is located in the left field corner.

”We are going to have a very unique fence,” Gasaway said. “(Baseball head coach Tyler) Porter, (Assistant Superintendent Stan) Whittle loved the idea of having a very unique outfield and so the outfield will have three pitching mounds. And they will have the view of the game. And then behind them will be the actual normal fencing.”
Gasaway spent some time talking about the clubhouse.
”One of the things that was really important to the baseball team, to us, is we wanted the ability for the kids to go straight from the dugout into the locker room,” he said. “This achieves that. It has the varsity locker room on the left, (junior varsity) on the right. It includes coaches’ office in the middle as well as a coaches’ dressing room as well as coaches’ bathroom, shower. It has one shower at the very bottom for the student-athletes. A lot of times they go straight home, but we do have a shower for the student-athletes.”
The track and field throwing pits for shot put and discus are to the left of the baseball facility when sitting at Mustang Stadium.
Gasaway noted the journey this project has taken.
Talks about a new baseball facility began late in December 2024 when officials began discussing in earnest building an indoor athletic facility. It will include a gym, state-ofthe- art weight room, and large room that has artificial turf with lines and other intangibles for every outdoor sport the athletic department offers. The turf also will have lines to accommodate the band.
By the time Gasaway presented each part of the bond to the MFISD board of trustees in January 2025, the site for the indoor facility also was revealed – where the current Scearce Baseball Field is located.
As a result, the bond included a new baseball facility for the Mustangs with a price of $6.53 million, which voters approved along with other bits and pieces of the 2025 bond in May.
During the September board meeting, board members were presented with sketches of the new baseball facility and were told a request for the guaranteed maximum price would be presented at the next board meeting in October.
But when October came, the project took a different turn.
Instead, board members voted to “… direct Pfluger Architects to cease work on the baseball facility, CTE building, multipurpose building and the Max Copeland Gym project until the board can take further action.”
That “further action” was to cut ties with Pfluger Architects and enter into a new contract with Huckabee and Associates, Inc. in early December.
As the superintendent presented to board members March 23, he noted how this facility is different than the one that was presented last fall.
Huckabee found some savings when it came to the detention pond, he said.
”Rather than go over the entire detention pond, they’re taking a portion of the detention pond that’s existing but not all of it and building another existing detention pond out past the outfield,” the superintendent said. “From what you saw in September, the biggest thing you’re going to notice as far as the difference is that it does not have community bathrooms, a concession stand, a janitor closest – all of that is removed.”
The other part that is gone is the awning that would have been built over the bleachers.
”One of the things that’s not calculated in this — and this is where I want to be crystal clear,” Gasaway said. “One of the things I don’t want us to walk away with is that the original budget was $6.5 million. The GMP is $7.1. The total amount, which includes soft costs, puts us roughly, just right above $8 million. The fees that we would pay for all the different soft costs to Huckabee and to the other architect – $8,033,000 with all the soft costs. As we’re approving the GMP and you get reports from about ‘how did we do?’ I felt like it was probably going to be about $1.5 million above budget, and I think that we’re really close to that. That contingency gives us some hope that we’ll come in just under $8 million if we don’t hit it for that total; if anything comes in under budget we have some hope that we’ll come in under $8 million.”
As he waited for questions, the superintendent took it upon himself to ask one.
”We’re over budget. How in the world are we going to make up for this?” he said. “I bet one of you had that question. Let me tell you a couple of things we’ve had positive outcomes on. One is the scoreboard at (Mustang Stadium). We anticipate that the Max Copeland Gym (project) will come in under budget from what we have.”
The scoreboard’s original budget was set at $800,000, but the cost is $438,174.40. And though officials have indicated they’ll request a second scoreboard for the south end, Gasaway told the board March 23 that he anticipates still saving $300,000.
The project at Max Copeland Gym is to construct new boys and girls varsity locker rooms and update existing locker rooms. Projected cost is $3 million.
”(Chief Financial Officer William Orr) can speak to this even more specifically,” Gasaway said. “Since we took ownership of the $159 million, we’ve had a steady stream of interest. Right now we’re right at $4 million, and that gives us a lot of flexibility that it could have been even more than what we’re proposing. But this gives us the ability to build it where we said we were going to build it, to open up the (current) baseball field, which will become the (spot of) the multipurpose facility and deliver most of what we were hoping to deliver.”
Jennifer Fierro publishes reports about area youth athletic events on her website TexasChalkTalk.com. To send her a note, email [email protected].









